Veröffentlicht: Montag, 13.10.2025 09:21
Der Umbau der neuen Stadtteilbibliothek Rheydt schreitet immer weiter voran. Die Bibliothek soll in das Erdgeschoss des ehemaligen Karstadtgebäudes ziehen.
© Radio 90,1
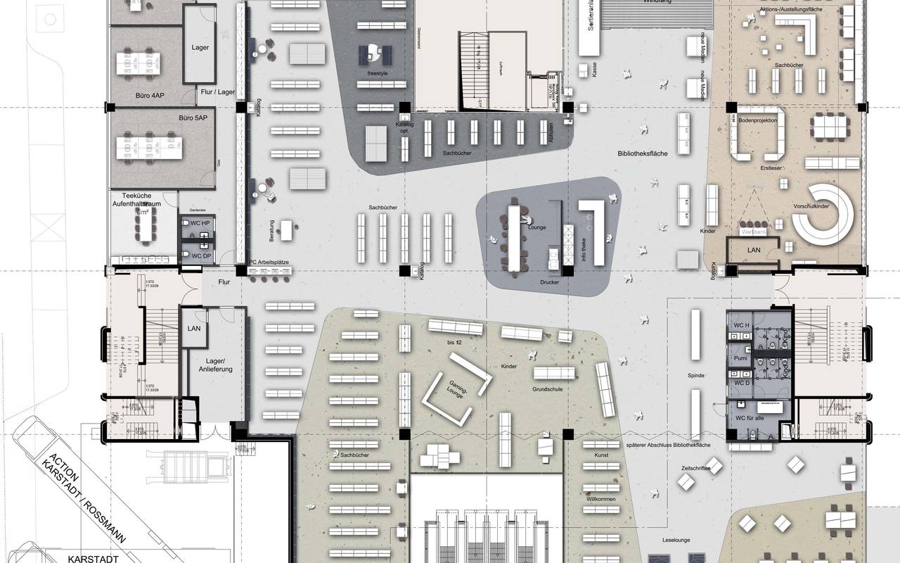
Laut der Entwicklungsgesellschaft der Stadt sollen die neuen Räume Anfang 2026 an die Stadtbibliothek übergeben werden. Mit dem Umzug ins Erdgeschoss am Rheydter Marktplatz soll die Stadtteilbibliothek in Zukunft noch sichtbarer und zentraler ins Stadtleben integriert werden. Auf rund 2.050 Quadratmetern entstehen laut EWMG verschiedene Themenbereiche, Lese- und Arbeitszonen, eine Gaming-Lounge und Gruppenräume. Daneben sollen auch ein neuer Bürotrakt und neue Sanitäranlagen mit Kinder-WC, Wickeltisch und „Toilette für alle“ entstehen. Neue Fenster Richtung Rheydter Stadtsparkasse sollen außerdem für zusätzliches Licht und Belüftung sorgen. Insgesamt kostet der Umbau, der vom Land NRW gefördert wird, rund 312.000 Euro.
Grundriss Stadtteilbibliothek Rheydt © sop architekten
Grundriss Stadtteilbibliothek Rheydt
© sop architekten