A escasos metros de los acantilados de la costa vizcaína, la vivienda oinarri —base o cimiento en euskera— está concebida como una edificación firmemente anclada en el terreno rocoso sobre el que se asienta. Con una superficie construida de 400 metros cuadrados, el proyecto de Verne arquitectura —Víctor Larripa, Javier Martínez y Daniel Ruiz de Gordejuela— se materializa como un gran prisma de piedra perforado por un patio central que articula el interior de la casa. La cubierta, inclinada hacia el patio, se resuelve con láminas engatilladas de cobre rojizo.
La fachada exterior, ejecutada en sillería de piedra caliza, muestra un aparejo minuciosamente trabajado y una textura escafilada realizada directamente en obra. Para subrayar el carácter abstracto del volumen, se eliminan cornisas y remates, acentuando la pureza de las aristas. Los huecos, resueltos con carpinterías de madera de iroko y paneles correderos del mismo material, introducen un contrapunto cálido frente a la solidez pétrea del conjunto.
En el interior, la luz accede desde el patio central, completamente vidriado, cuyo perímetro está configurado mediante ventanales correderos, que multiplican la sensación de profundidad y continuidad espacial. A ambos lados del patio se sitúan el vestíbulo de acceso y el salón, en un juego de simetrías y transparencias que refuerza la conexión visual entre los espacios.
Los pasillos laterales conducen a las distintas estancias, y en las esquinas se disponen espacios complementarios como la cocina —en la cara norte—, el despacho y la sala de televisión —en la sur—. El diseño interior, desarrollado junto a Estudio Baufor, prolonga la coherencia material y formal del conjunto.
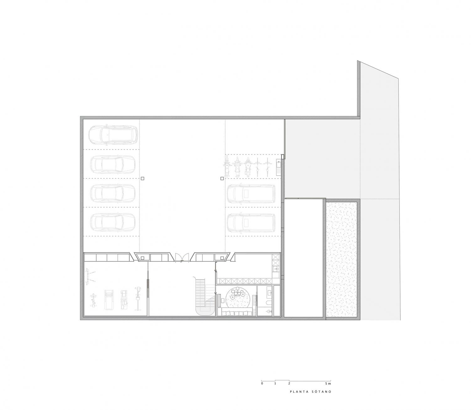
El sótano, accesible mediante una rampa discretamente integrada en la vegetación, alberga el garaje y las dependencias secundarias. Este nivel está organizado en torno a cuatro pilares de hormigón que marcan el eje del patio, mientras los cierres y accesos mantienen la textura cálida de la madera de iroko.



















