Inaugurado en 1988 y situado en la comuna de Las Condes en Santiago de Chile, el estadio San Carlos de Apoquindo —hoy Claro Arena— ha sido ampliado para aumentar su aforo de 12.000 a 20.000 espectadores. Sede del equipo de fútbol Universidad Católica, el club impulsó un concurso que derivó en un proyecto firmado por IDOM —Borja Gómez y César Azcárate—, enfocado en la sostenibilidad, la eficiencia y la experiencia integral para el público.
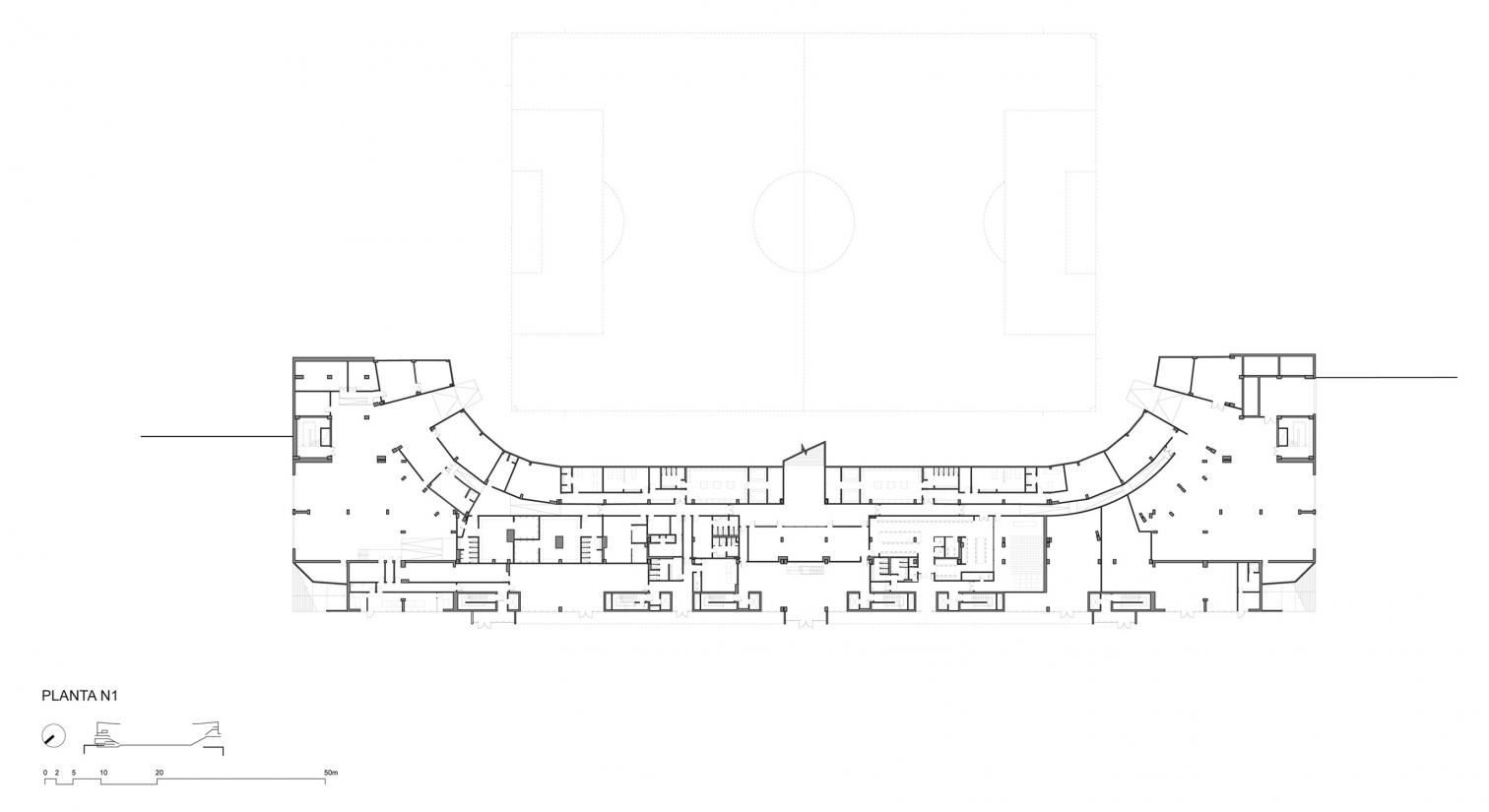
Se preserva gran parte del carácter original, como la estructura de hormigón. El graderío existente se mantiene casi intacto y sobre él se construye un bulevar perimetral a cota de la banda oriente (Fouilloux), que articula los accesos y conecta todas las áreas. Bajo este nivel permanece el estadio antiguo, anclado en la tierra, mientras que sobre él se levanta una estructura ligera y permeable que aloja la ampliación. La cubierta de luces de hasta 31 metros combina madera y acero para responder a las exigencias sísmicas.
La intervención respeta el 95% de las visuales del graderío original e incorpora nuevas galerías y palcos. En el sector Livingstone, a poniente, se integran salas de prensa, espacios técnicos y zonas de hospitalidad. La envolvente, compuesta por lamas verticales de madera laminada de pino con iluminación LED, varía según la orientación e incluye bastidores solares y paneles acústicos.
El proyecto aplica estrategias integrales de circularidad, reutiliza hormigón, recicla acero y plástico, y emplea 1.600 m³ de madera chilena que capturan más de 1.500 toneladas de CO₂.

























