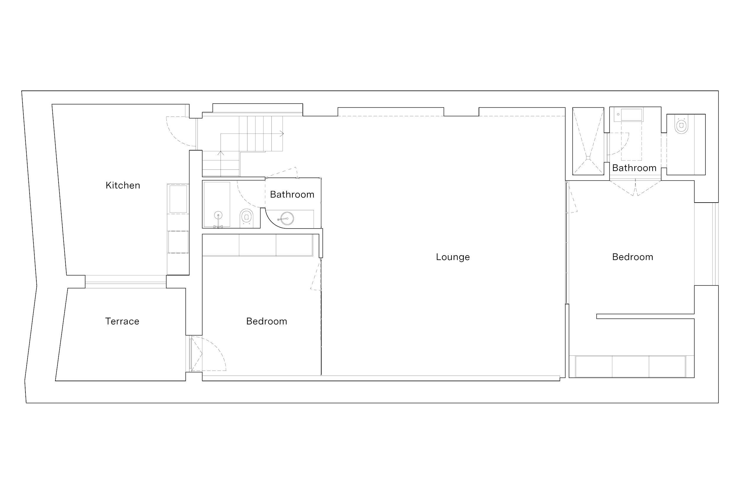
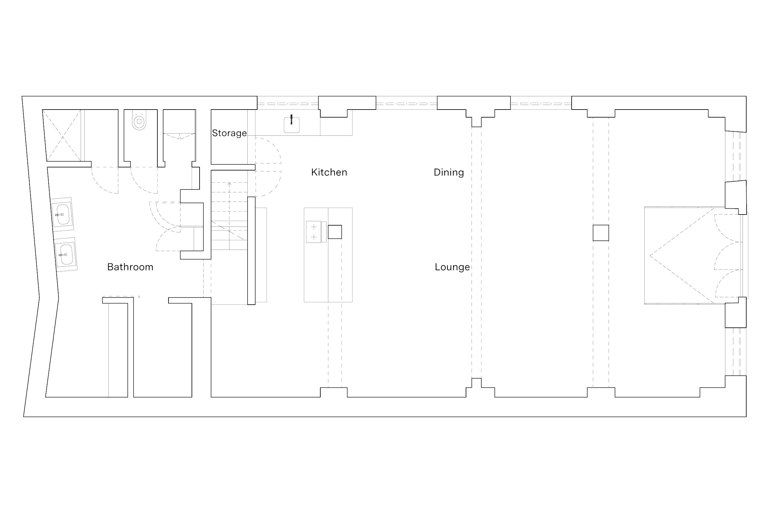
Dans une ancienne usine métamorphosée, cet appartement aux volumes spectaculaires joue avec l’espace, la lumière et la décoration contemporaine. Derrière une façade industrielle conservée, cet appartement à Lisbonne est issu d’une transformation architecturale menée avec brio. L’accès est direct depuis la rue et le calme vous envahit immédiatement. Les volumes rappellent l’histoire du lieu, ancien espace de production devenu une habitation aux généreux espaces. Les poutres apparentes se marient aux larges baies vitrées, laissant la lumière dessiner les perspectives. L’organisation intérieure est une suite d’espaces ouverts qui cohabitent naturellement, selon les moments de la journée.
Les sols en béton recouvrent les pièces principales, tandis que le parquet en chêne réchauffe les espaces privés. Deux suites bien séparées assurent une vraie indépendance. Le mobilier est de style contemporain et n’en fait pas trop. Les équipements techniques restent discrets, mais présents, pour un confort constant toute l’année. L’appartement s’inscrit dans un quartier créatif, marqué par d’anciens ateliers réhabilités. Ici, l’espace et la fonctionnalité proposent une manière simple et contemporaine d’habiter la ville.
An apartment with spectacular volumes in a former factory in Lisbon
In a converted former factory, this apartment with spectacular volumes plays with space, light and contemporary decoration. Behind a preserved industrial façade, this apartment in Lisbon is the result of a brilliant architectural transformation. Access is direct from the street, and you are immediately enveloped in tranquillity. The volumes recall the history of the place, a former production space that has been converted into a home with generous spaces. Exposed beams blend with large bay windows, allowing light to shape the perspectives. The interior layout is a series of open spaces that coexist naturally, depending on the time of day.
Concrete floors cover the main rooms, while oak parquet flooring warms up the private spaces. Two separate suites ensure true independence. The furniture is contemporary in style and understated. The technical equipment remains discreet but present, for constant comfort all year round. This flat is located in a creative neighbourhood, characterised by renovated former workshops. Here, space and functionality offer a simple and contemporary way of living in the city.
Cet appartement aux volumes spectaculaires dans une ancienne usine à Lisbonne est en vente chez Fantatic Frank
This spectacularly spacious flat in a former factory in Lisbon is for sale at Fantatic Frank





















![[en.casa] Set de 2 Chaises Design Chaise de Cuisine Chaise de Salle à Manger Plastique Gris et Noir 83 x 54 x 48 cm](https://www.europesays.com/fr/wp-content/uploads/2026/02/61B2xSll-XL_eeea3dfb-de07-453b-ac50-93046a8dfb45_720x.jpg)



