Compartilhar
Compartilhar
Ou
https://www.archdaily.com.br/br/1034843/casa-tibe-bruno-tinoco-arquitetura
© Paulo Higor Nunes
Descrição enviada pela equipe de projeto. Localizada na Praia de Serrambi, no litoral sul de Pernambuco, esta residência concluída em 2021 foi projetada como um refúgio de contemplação e convivência, privilegiando a integração entre arquitetura, natureza e vida cotidiana. O projeto se ancora na madeira como elemento estrutural e estético central, explorando sua expressividade e reafirmando a busca por uma linguagem tectônica enraizada na organicidade dos materiais.
A casa é marcada por um grid de pilares e vigas em eucalipto tratado, mantidos aparentes e protagonistas na fachada. Essa malha estrutural, além de conferir ritmo e identidade ao conjunto, expressa uma ordem construtiva clara e coerente, revelando o caráter artesanal da obra. A cobertura, sustentada por beirais generosos e mãos francesas, reforça a proteção climática e cria zonas de sombra e transição, ampliando a vivência dos espaços externos.
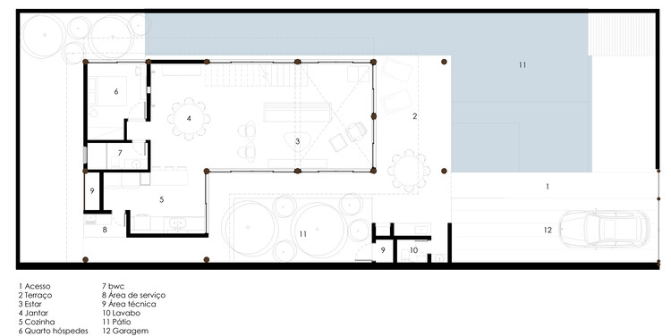
O partido adota uma implantação em formato de “U”, configurando dois polos complementares. De um lado, um pátio interno com vegetação tropical garante privacidade, ventilação cruzada e frescor. Do outro, a piscina de 90 m², com raia de 20 metros, atende ao perfil esportivo dos moradores, nadadores, surfistas e jogadores de polo aquático. O espelho d’água percorre longitudinalmente a lateral da casa e estabelece uma conexão direta com a sala de estar, criando situações singulares: conversar com quem nada ou mergulhar diretamente a partir do espaço social são experiências pensadas como parte do cotidiano.
© Paulo Higor Nunes
© Paulo Higor Nunes
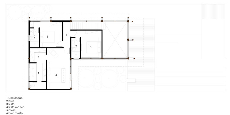
O volume organiza-se em dois blocos sobrepostos. O pavimento inferior, amplamente envidraçado, dissolve os limites entre interior e exterior e exibe a estrutura em sua totalidade, transmitindo leveza e transparência. Já o pavimento superior se apresenta mais maciço, protegido por brises de madeira que filtram a insolação, garantem ventilação e conferem privacidade. Essa dualidade entre opacidade e transparência intensifica a sensação de que o bloco superior flutua sobre o térreo.
Planta – Pavimento térreo
Planta – Primeiro pavimento
No interior, a escada central se destaca como elemento escultórico, conformando um portal que conduz ao pavimento superior e reafirma a lógica construtiva adotada. Elementos em pedra natural, aplicados nas empenas e muros laterais, introduzem textura e rusticidade, ampliando o diálogo entre os materiais e o entorno costeiro.
© Paulo Higor Nunes
© Paulo Higor Nunes
A iluminação artificial foi cuidadosamente projetada para valorizar a materialidade da construção. A luz quente ressalta o desenho dos pilares e vigas, criando atmosferas cênicas e acolhedoras no período noturno. Esse cuidado amplia a dimensão sensorial da casa, equilibrando arquitetura, natureza e experiência humana.
Mais do que uma residência de praia, o projeto se afirma como uma celebração da arquitetura orgânica, onde estrutura, materialidade e paisagem se entrelaçam para oferecer um espaço de habitar em harmonia com o tempo e o lugar.





© Paulo Higor Nunes
© Paulo Higor Nunes
© Paulo Higor Nunes
© Paulo Higor Nunes